| Prenájom | Dostupné od 01.09.2026 |
|---|---|
| Označenie priestoru | Dunaj | Dom odievania |
| Účel | Obchodné priestory, Cowork, Virtuálne sídlo, Kancelárie so službami, Klasické kancelárie |
| Adresa | Námestie SNP 30, Bratislava 81101 |
| Plocha k prenájmu | od 150 do 1188 m2 |
| Požadovaný nájom | Vyžiadať cenu |
| Preddavky na prevádzkové náklady: | – |
Budova prináša moderné (BREEAM Excellent), dizajnové kancelárske priestory v ikonickej budove na Nám. SNP, podľa návrhu štúdia Bogle Architects. Objekt ponúka flexibilné kancelárie, coworking a kvalitné služby priamo v centre mesta. Súčasťou objektu sú aj štýlové apartmány, ktoré dopĺňajú prémiový charakter. Ideálna adresa pre firmy, ktoré hľadajú reprezentatívne priestory. Cena na vyžiadanie.
Reštaurácie, kaviareň, cocktail bar, eventové a konferenčné priestory, banky, lekáreň, parkovanie.
| Názov budovy | Dunaj | Dom odievania |
|---|---|
| Kolaudácia / Rekonštrukcia | 2026 |
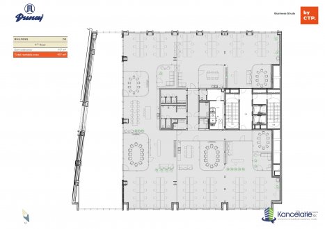
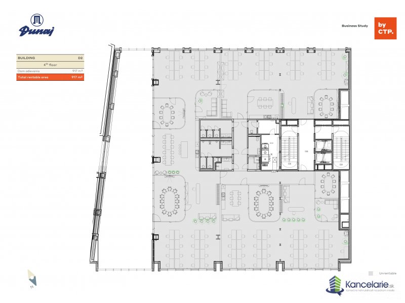
| Celková plocha kancelárií v budove: | 5072 m2 |
| Celková plocha obchodných priestorov: | 1497 m2 |
| Počet poschodí: | 7 |
| Existujúci najomcovia: | Cocktail bar, speciality coffee kaviareň, reštaurácia, coworkingové kancelárie |
| Energetický cetrifikát: | A |
mes.
mes.
mes.
mes.
Pripravíme Vám prehľad voľných priestorov na trhu do 24h.
Služby pre nájomcovSťahovanie vašej spoločnosti bude hračkou.
